the Neighborhood Design Center
Project No. 3822

Foundation for the Advancement of Music & Education: Redesigning Educational Spaces to Support Young Musicians

FAME, a Maryland-based organization that supports young musicians through music training and academic support, operates programs based in schools and other sites throughout Maryland. The Neighborhood Design Center collaborated with FAME on two projects in Prince George’s County, a space redesign at Dr. Henry A. Wise Jr. High School in Prince George’s County and a renovation at Harmony Hall Regional Center.

What We Did

  • Visioning
  • Community Engagement
  • Space Planning
  • Interior Design

Partners

  • The Foundation for the Advancement of Music & Education
  • Students
  • Parents
  • Board Members
  • Maryland National Capital Park and Planning Commission (M-NCPPC)

Supporters

  • Department Parks and Recreation (M-NCPPC)
  • Prince George’s County Executive - Community Impact Grant
  • FAME Friends & Family
  • Pendleton LLC
  • Chuck Levin’s Washington Music Center
  • Prince George’s County Local Community Development Council


The existing conditions in the space were cluttered and not reaching their full potential. NDC staff and volunteers got to work.
The existing conditions in the space were cluttered and not reaching their full potential. NDC staff and volunteers got to work.

Designing with the community

NDC staff guided the community design process for FAME @Wise, hosting workshops to capture the community’s vision and get feedback. Through those activities, NDC identified that stakeholders wanted to create a transformative, fun, and educational space and created a design incorporating those themes. The final design, which includes features like informal seating areas, vinyl window graphics, mounted instruments, educational murals and more, was installed in 2022.

Slide 1 of 3
Students enjoying the new learning environment. Photos by FAME.
Students enjoying the new learning environment. Photos by FAME.


Building on the template

Informed by the FAME @Wise project, NDC and FAME collaborated with the Maryland National Capital Park and Planning Commission (M-NCPPC) on a larger renovation project to create a state-of-the-art creative space for youth living in South Prince George’s County at Harmony Hall Regional Center. 

“A lot of the ideas that resulted in the first design came through in this new space.”

Angelica Arias, NDC Program Coordinator

The Vision: completely renovate the Harmony Hall space using Wise as a precedent

Since 1989, Harmony Hall Arts Center in Fort Washington, MD, has been one of Prince George’s County’s most popular arts facilities, hosting exhibitions, performances, classes and events for community members of all ages. FAME had secured space within Harmony Hall for academic tutoring, music instruction, and music production. With the redesigned Wise space complete, FAME envisioned completely renovating their Harmony Hall space using Wise as a precedent.

A larger scope

FAME’S vision for a renovated Harmony Hall would provide a dedicated space for academic tutoring, instrumental instruction, music production, performances, and other creative teaching for area students. As FAME @Harmony Hall built upon the work created by FAME @Wise, NDC once again collaborated with the partner on this project. Yet, while the Harmony Hall project was inspired by Wise High School, the vision for the Harmony Hall space was larger in scope and would require much more than the largely cosmetic design improvements implemented in the previous project. With the support of the Maryland National Capital Park and Planning Commission (M-NCPPC), the partners embarked on the renovation, starting with the community design process.

Two options for initial layouts of the Harmony space.
Two options for initial layouts of the Harmony space.

The Plan: Create mood boards, incorporate feedback, and create design concepts

The project kicked off with a stakeholder meeting held with Harmony Hall staff, FAME board members, students, and parents to share their visions for the FAME spaces at Harmony Hall. The NDC team worked from ideas from the first project to create mood boards to present to stakeholders for their reactions and feedback. Four themes emerged that best represented the vision for the space: Inspiring, Collaborative, Educational, and Colorful.


A few examples of our inspiration images to inform the look and feel of the space.
A few examples of our inspiration images to inform the look and feel of the space.

“The space should be inspirational, making students want to come back and learn more.”

A parent at the first meeting

Shaping the vision

The team used this stakeholder feedback to guide the first drafts of conceptual drawings. The NDC team incorporated modern furniture into the design and a wall of FAME comprised of boards highlighting important organizational milestones and photos of past and present students. 

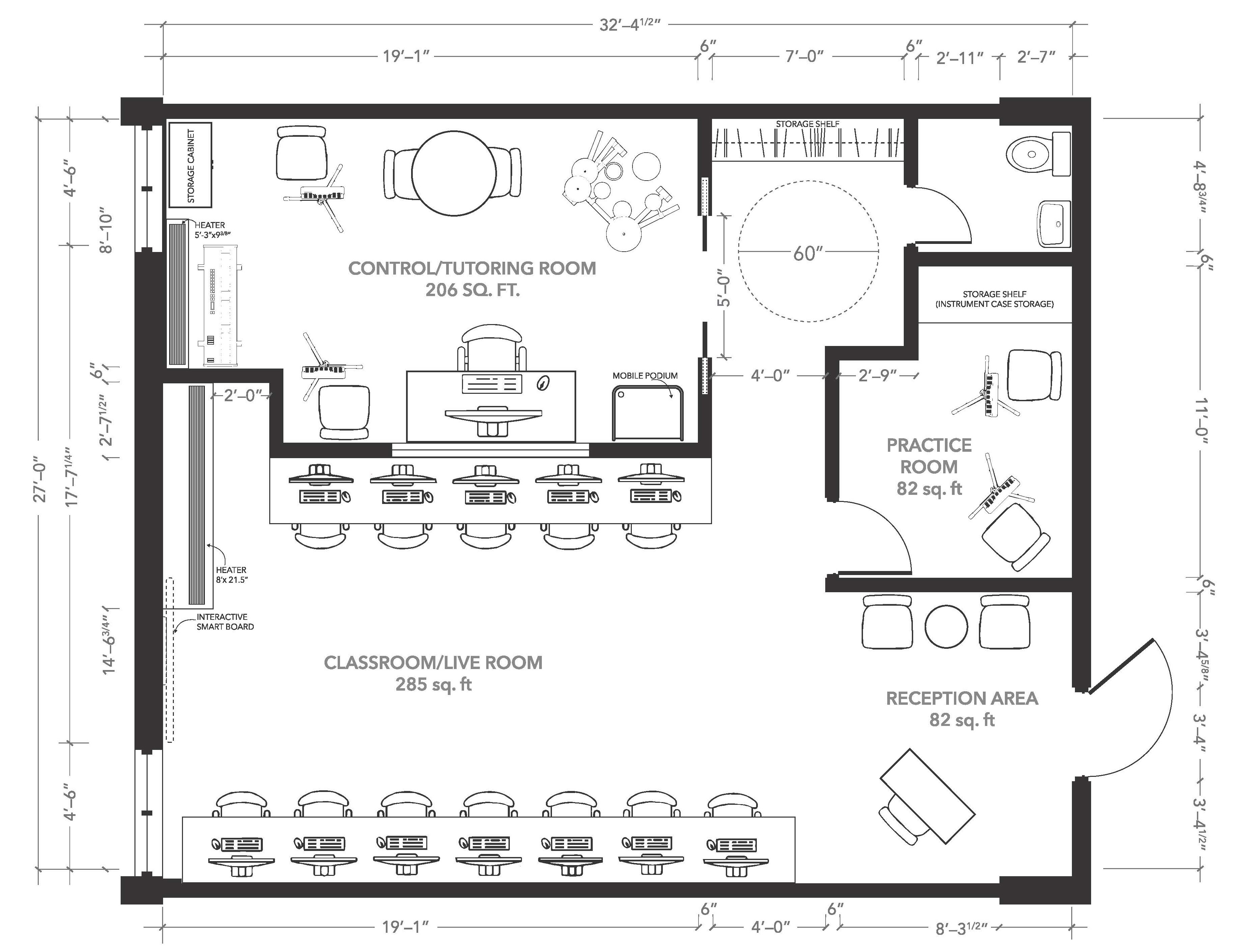
The conceptual drawings were reviewed in a follow-up stakeholder meeting, and based on community feedback, NDC revised the draft plans and created final designs. These designs included a tutoring room, a recording room, a classroom and a reception area. In addition to the wall of FAME, features like an interactive smart board, hall-of-fame-wall, vinyl wall graphics and custom wall art were all part of the final design. 

Final floor plan of Harmony space.
Final floor plan of Harmony space.
For each part of the space, NDC measured and mocked up what should be there. The FAME Control Room is shown here, one of many renderings we provided.
For each part of the space, NDC measured and mocked up what should be there. The FAME Control Room is shown here, one of many renderings we provided.

1
2
3
4

The Future

In fall 2023, the completed space was celebrated with a ribbon-cutting for stakeholders and community members to view the newly renovated space, and FAME has already begun utilizing the space for programming. 

FAME hopes to advance its mission and brand to schools across the region. They aim to take the lessons learned and ideas generated from the two successful collaborations to inform the design of future FAME spaces.

Slide 1 of 4