the Neighborhood Design Center

Architectural and Interior Design

Village Learning Place

The NDC team makes note of the building’s exisiting conditions.
The NDC team makes note of the building’s exisiting conditions.

NDC provided pro-bono design services through our Community Design Works program to help this independent non-profit library envision how to best optimize their space for new programming.

The Village Learning Place (VLP) houses educational programs, enrichment opportunities, and informational resources for Charles Village and throughout Baltimore City. Over the years, VLP has expanded their programming to include summer camps, after-school programming, and other year-round classes for children, and lectures, concerts, and art events for adults in the community. 

Small space, big impact.

The library is located in a relatively small and historic building located at 2521 St. Paul Street. This posed some interesting challenges and opportunities as we explored ways to showcase their diverse programming, and improve the accessibility, security, and sustainability of the building.

Slide 1 of 4

1
2
Slide 1 of 4

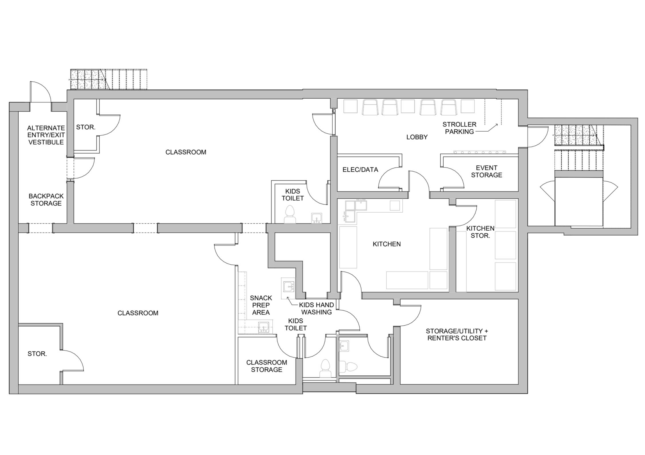
NDC created inspirational renderings and floor plans to visualize what’s possible.

The key recommendations for the library included:

    • Improvements to the garden and side access of the building, moving the library’s main entry to the accessible addition in the back of the building

    • Relocation of the circulation desk and children’s corner to create a large and flexible event space on the main level

    • Additional infrastructure for young children in the basement, along with improved storage space, kitchen, and circulation

Last Updated January 2025

Similar Projects