the Neighborhood Design Center
People Pictured: neighbors, Bree Jones (Parity founder) is next to the person in pink, Stephanie Paul (Volunteer architect) is behind her in the jean jacket and black pants, Derek Moore (volunteer community engagement) is in the green hat)

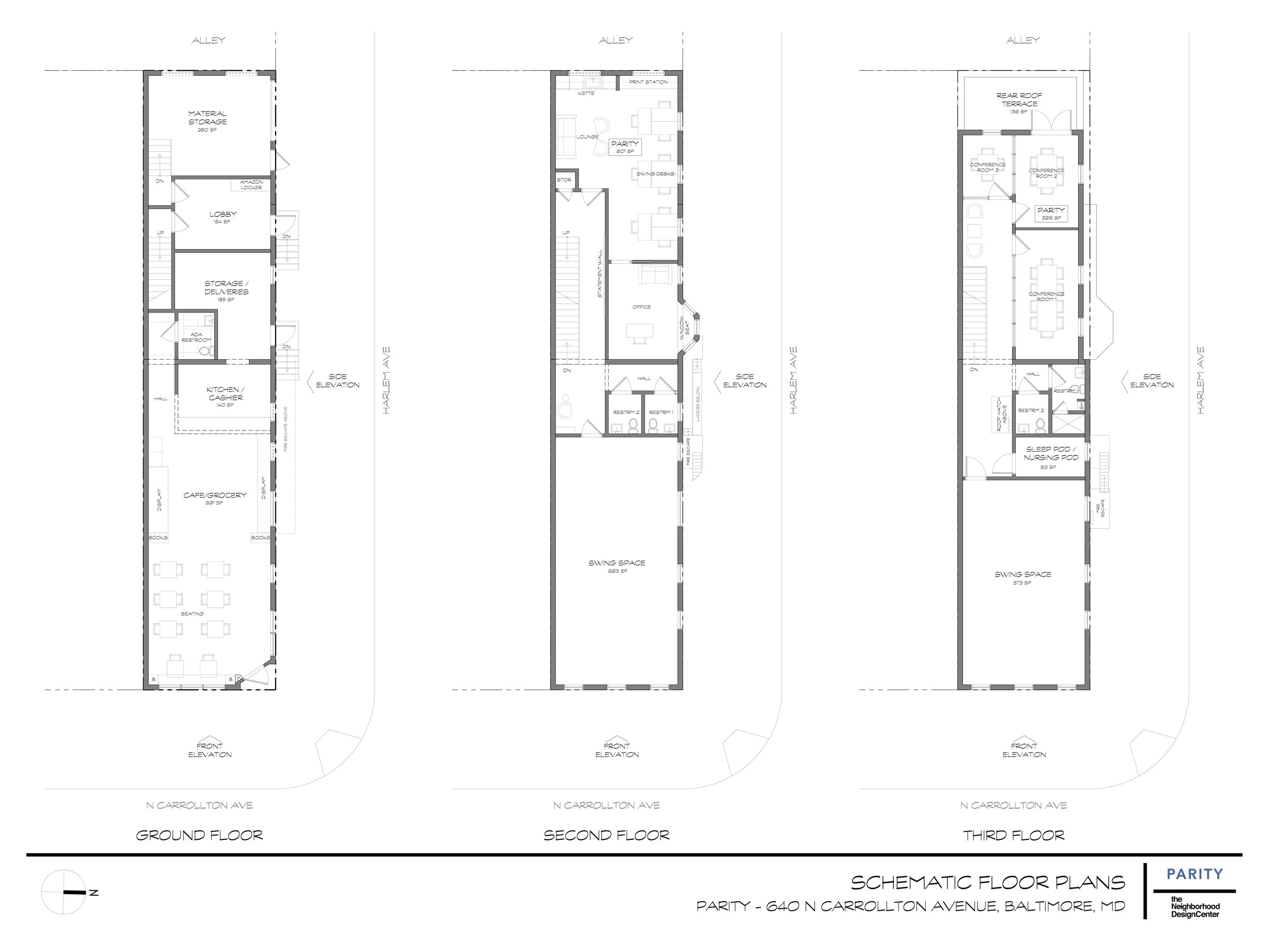
Parity, founded by Bree Jones, recently acquired 640 N Carrollton Avenue, a corner lot property. The building formerly served as a community market and has been vacant and deteriorating for many years. Parity would like to restore the building and create a mixed-use space including a storefront offering light food (deli, cafe), Parity’s offices, and programmable swing spaces for community uses on the 2nd and 3rd floors.

NDC joined the project through our Community Design Works program. Above is the first on-site share out and engagement event in October of 2021. The goal of this event was to inform the neighborhood that the building was going to be developed by Parity, to get feedback regarding the community/commercial space on the first floor, and to collect stories from neighbors about when the building used to be a corner store.

Below: Final (public-facing) design package for the building, created by Stephanie Paul.

Slide 1 of 4

Last Updated December 2023

Similar Projects