NDC provided pro-bono design services through our Arts Space Technical Assistance (ASTA) program to help the founder of Muse 360 reimagine and transform a residential property into a thriving community arts space.
Muse 360 Arts is a Baltimore-based youth organization dedicated to empowering young individuals to harness their voices and creative talents. Through initiatives like Rayn Fall Dance Studio, New Generation Scholars, and Spark of Genius, Muse 360 provides African-centered leadership development, pre-professional dance training, and creative entrepreneurship opportunities. These programs equip youth with the tools to maximize their ingenuity, self-awareness, and life skills, fostering a sustainable and empowered future.
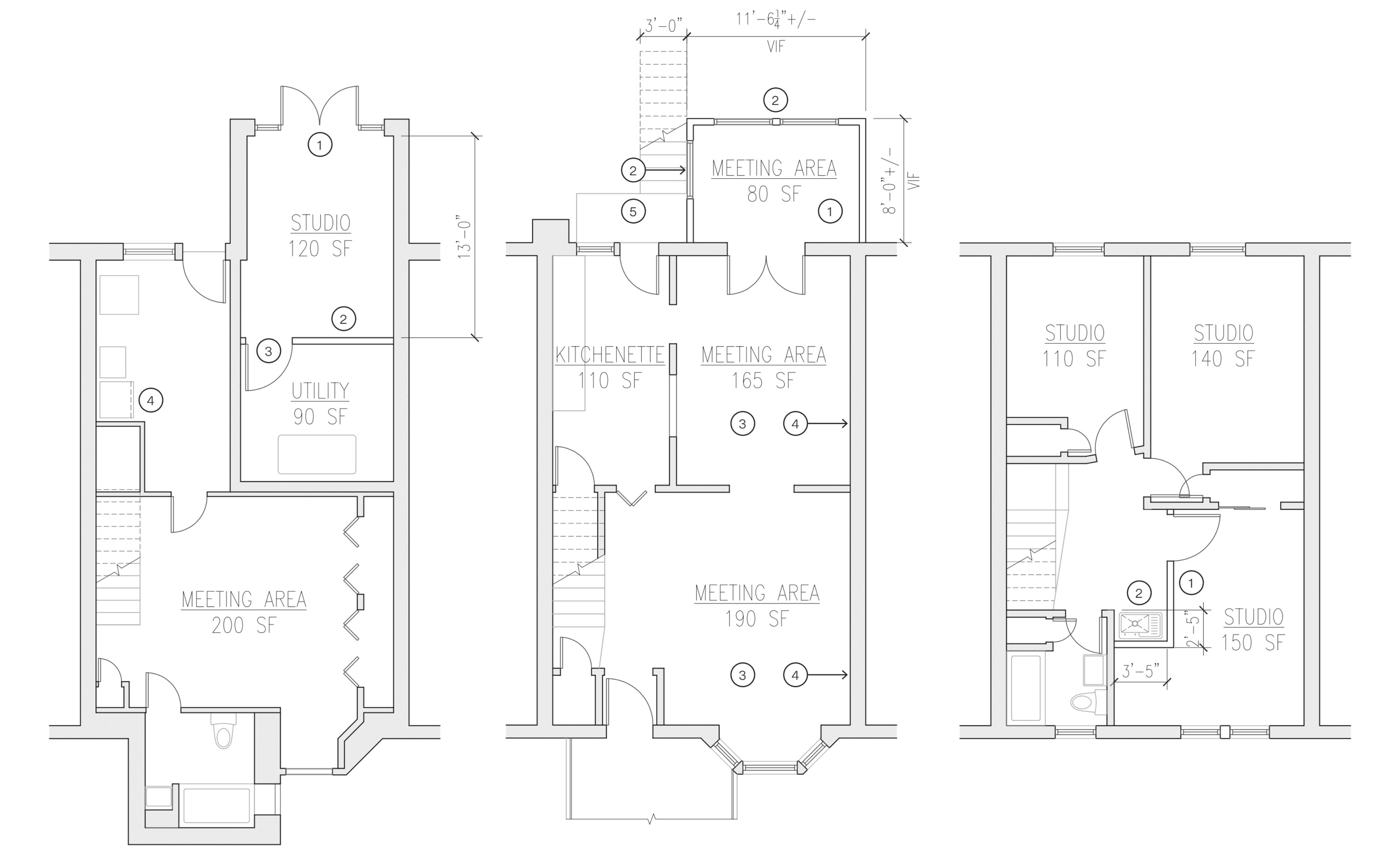
When Muse 360’s long-term lease was not renewed, founder Sharayna Christmas turned to a residential property she owned in Northeast Baltimore. This modest two-story rowhome, now known as 360 House, became the centerpiece of a plan to create a small community arts space featuring studios, a gallery, and communal work areas.
Transforming a home into a functional arts space required significant modifications. NDC worked closely with Christmas to assess the existing building and programming needs and developed a thoughtful design plan, including:
Adapting the garage into a studio.
Enclosing the porch to add interior space.
Turning the basement into a media studio.
Converting bedrooms into artist studios with a shared utility sink.
Installing a gallery rail system and repainting existing work areas to enhance functionality while preserving the home’s character.
In addition to addressing design needs, NDC’s ASTA program partnered with students from JHU’s Engineers Without Borders chapter to explore energy efficiency upgrades. Solar power emerged as a viable solution, offering a sustainable way to offset utility costs and reduce the house’s environmental impact.
While the transformation of 360 House is still in progress, the installation of the gallery rail system and other initial steps have already brought the space closer to fulfilling its mission. Once completed, 360 House will serve as a haven for artists and a hub for youth empowerment, continuing Muse 360 Arts’ legacy of fostering creativity and community.
Christina Hartsfield
Our placemaking team listens to the unique history of each neighborhood and proposes design and art solutions that anchor and amplify those stories in place. We can support you in identifying public art opportunities, artist selection, designing placemaking elements and events, or securing a historic designation for your building or neighborhood. 
Public Art and Administration (Includes Artist Residency Programs, Management of Artist RFQs and RFPs)
Public Art Implementation
Placekeeping and Placemaking
Historic Preservation
Place-based Identity
Public Space Design
Cultural and Public Artplans
Deadline: April 30, 2025
The City of Baltimore provides limited support to cultural organizations each year through the capital budget. Every two years, organizations can apply for General Obligation (GO) bonds for eligible capital improvements to their facilities.
Rolling through April 2025
The Creativity Grant for Projects is available to independent artists and arts organizations. There are two options to choose from: the Project-Planning Grant is intended to support the early stages of research and development for a proposed project; the Project-Implementation Grant is intended to support the execution of a specific arts projects/event/program.
Last updated April 2025